Škola Kateřinky!
Menu
Pro uchazeče
Domov mládeže
O škole
Erasmus
Projekty
Dokumenty
Pedagogický sbor
Kontakty
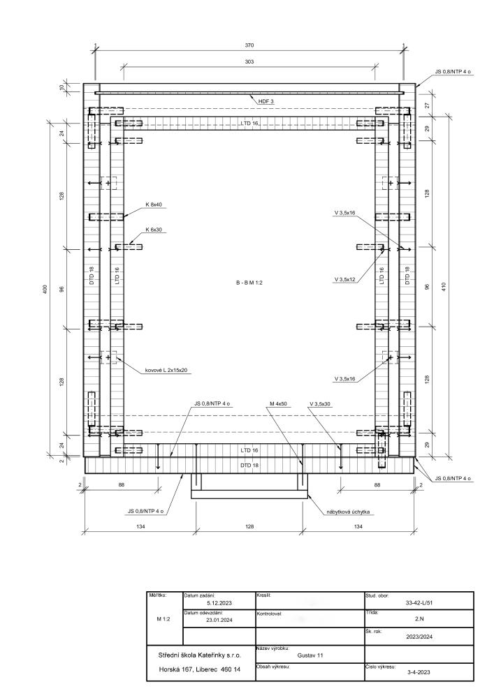
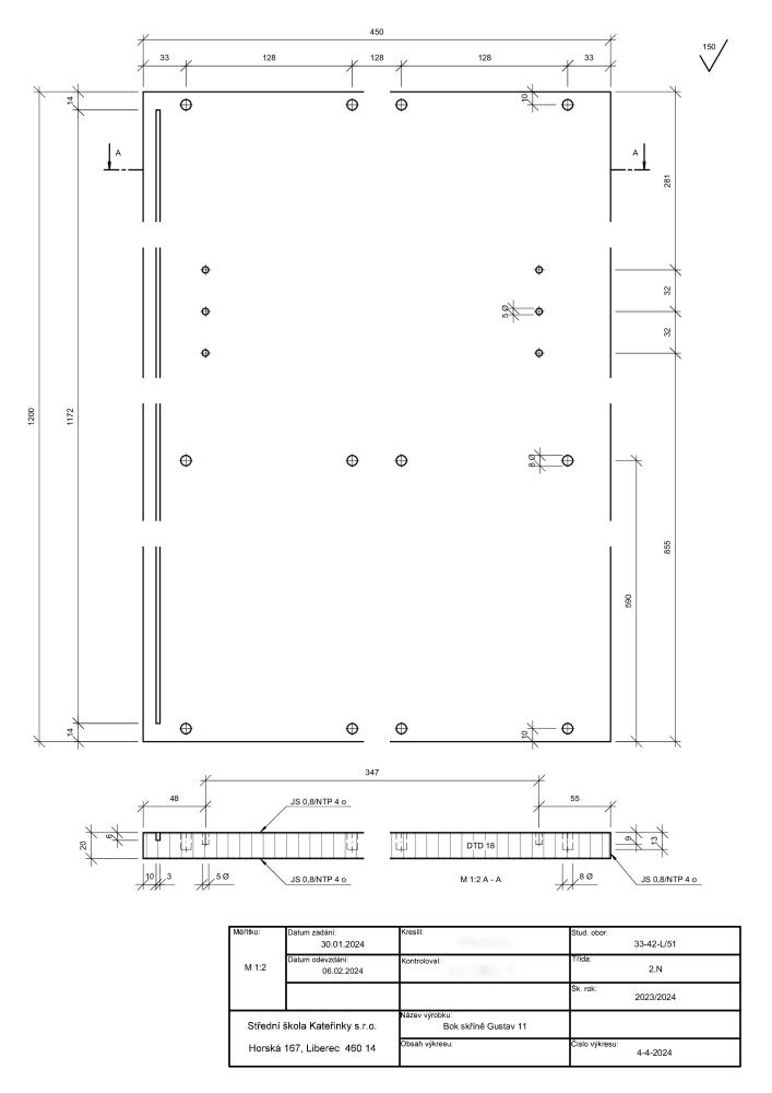
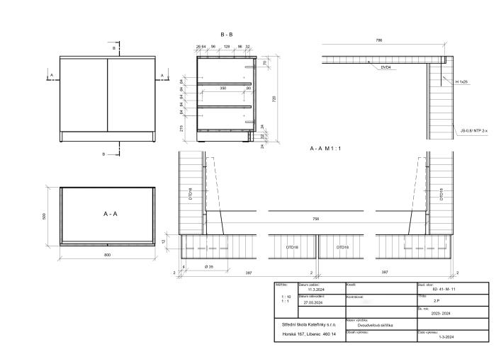
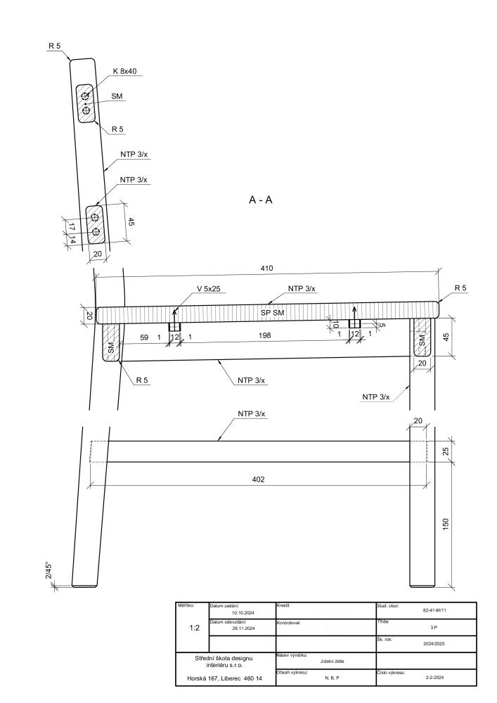
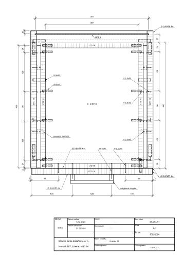
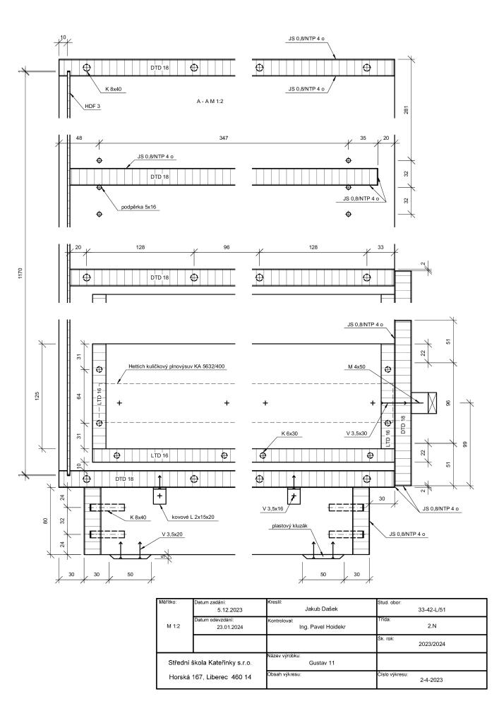
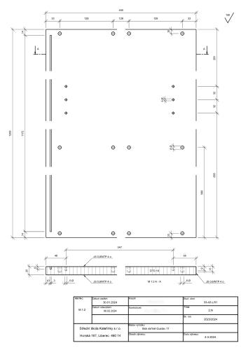
Ukázka technických výkresů oboru Design interiéru
Technické výkresy
Kusovník materiálu
schránka důvěry
×
Jméno (nepovinné)
Třída (povinné)
E-mail (nepovinné)
Text (povinné)